+357 22 27 00 19

Residential Investment opportunity to buy this amazing land within the forest

Mosfiloti, Larnaca
€280,000+VAT
  • 2384m2 Plot

Description

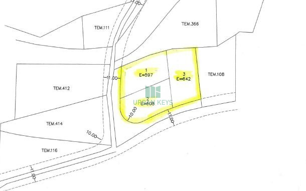
This residential field is a great investment opportunity and ideal for the development of a house or a division into smaller plots. The field has flat and even surfaces, square in shape, and abuts a registered road. The property is adjacent to the forest and is surrounded by mature trees while is located 2 minutes drive from Agia Thekla monastery. The plot has applied for the division of the field into 3 plots each having an area of.
1. 597sq.m
2. 608 sq.m (corner plot)
3. 642sq.m

Agent

Lambros Kaloyirou Manager (+357) 99434451 [email protected]

Contact us

Thank you for your message!